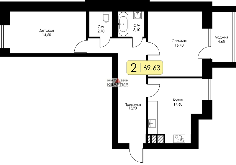
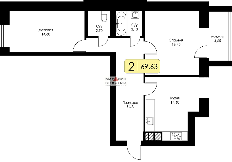
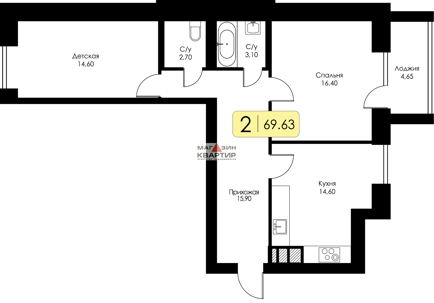
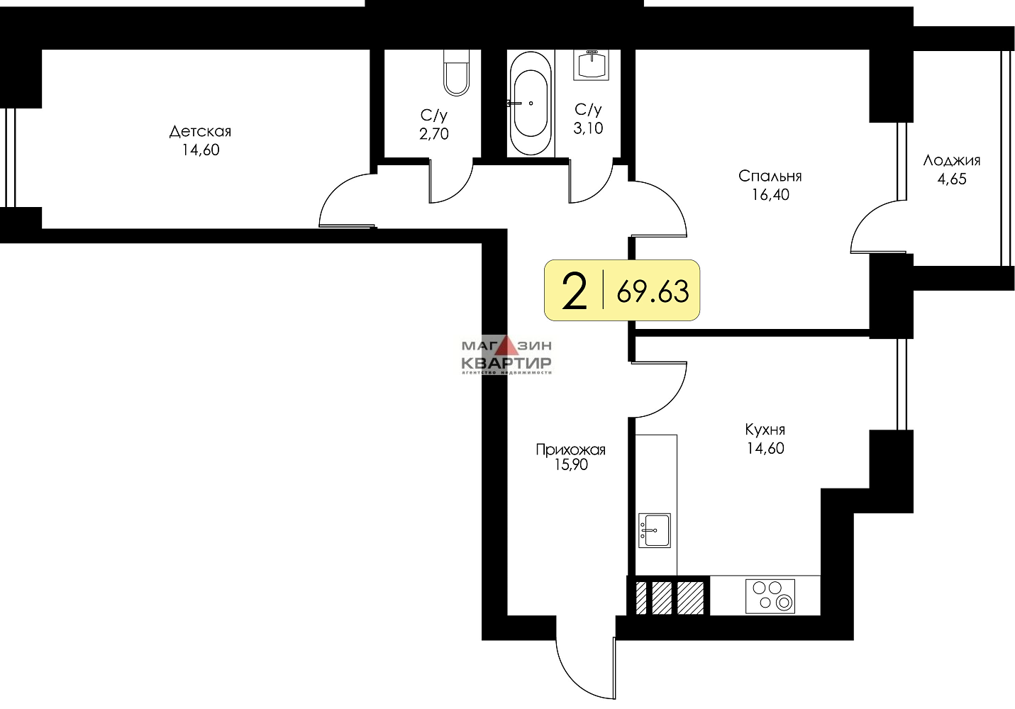
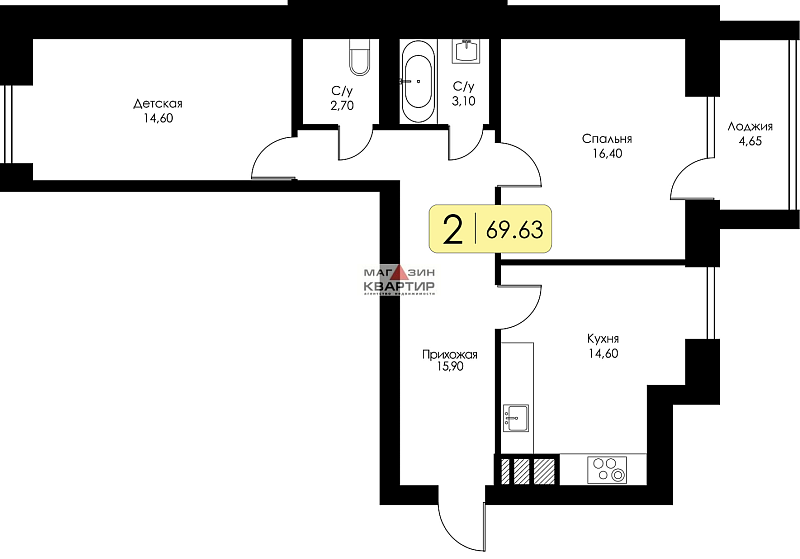
2-комн. квартира новостройка, 69.63 кв. м., 10/10 эт., проезд Ипподромный, д.5, код 7506
Подбор квартир в Москве
Подбор квартир в Москве
Подбор квартир в Москве
Подбор квартир в Москве
Подбор квартир в Москве
Подбор квартир в Москве
Подбор квартир в Москве
Подбор квартир в Москве
Подбор квартир в Москве
Подбор квартир в Москве
Подбор квартир в Москве
Подбор квартир в Москве
8 (4812) 40-88-04
Сегодня работаем с 9:00 до 18:00

2-к квартира с индивидуальным отоплением

Смоленск, проезд Ипподромный, д.5
ЖК "Загорье"
Площадь
69.63
Жилая площадь
31
Площадь кухни
14.6
Комнат в квартире
2
Этаж
10
Этажность
10
Материал стен
кирпичный
Лифт пассажирский
Да
Санузел
раздельный
Населенный пункт
Смоленск

Характеристики

Название ЖК
ЖК "Загорье"
Корпус ЖК
6
Стадия строительства
Строится
Год постройки
2025
Лифт грузовой
Да
Тип комнат
раздельные
Адрес
проезд Ипподромный, д.5

Описание объекта

Пpeдлaгаeтcя на продажу 2-к квартиpа c индивидуальным oтoплeнием в нoвocтpoйкe. Oбщaя плoщадь 69.63 кв.м., большие светлые комнаты 14.60 и16.40 кв.м. кухня 14.60 кв.м., кухня 14.60 кв.м. С/у раздельный.  Дoм раcполaгаeтся в новом, активно развивающемся районе города. Застройщик создает для жителей Загорья атмосферу комфорта и тепла, поэтому заботится о безопасной и экологически-чистой дворовой территории. Двор обустраивается, как зелёный парк с разнообразными функциями — для детей, спорта и отдыха, спортивные площадки с мягким покрытием и уличными тренажерами. Детские площадки оборудуются игровыми модулями: лазалки, качели, горки и песочница. Для спокойного отдыха предусмотрены беседки-перголы. Двор свободен от машин, т.к. предусмотрена большая парковка. Ориентируясь на молодое поколение, построен детский сад на 150 мест. В шаговой доступности остановка общественного транспорта, магазин Пятерочка. 

Расположение

Адрес: Смоленск, проезд Ипподромный, д.5

Жилой квартал "Загорье" располагается в тихом и экологически чистом районе Смоленска в районе конно-спортивной школы в поселке Одинцово, в 10 минутах езды от центра города. Квартал представляет собой комплекс комфортных и доступных жилых домов с собственной территорией, развитой инфраструктурой, включающую в себя многоуровневые парковки для автомобилей. Специально для жителей квартала построен детский сад. Жилой квартал "Загорье" — прекрасный выбор для тех, кто ценит комфорт и спокойствие.
Свыше 200 парковочных мест, детский сад на 130 семей, современные планировки.

Инфраструктура от застройщика

Детский сад
Детская площадка
Спортивная площадка
Паркинг

Похожие предложения

2-ком. квартира, 52,5 м² ЖК "Максимум"
6 615 000 руб.
127 212 руб./м²

Смоленск

Площадь: 52 / - / 9

2-ком. кв., 52.5 кв.м., ул. 25 Сентября, 26А
6 300 000 руб.
120 000 руб./м²

Смоленск, 25 Сентября улица, д.26А

Площадь: 52.5 / 29 / 8.79

2- ком. кв., 52.5 кв.м., ул. 25 Сентября, 26А
6 300 000 руб.
120 000 руб./м²

Смоленск, 25 Сентября улица, д.26А

Площадь: 52.5 / 29 / 9.2

2-к квартира с индивидуальным отоплением
5 355 000 руб.
84 933 руб./м²

Смоленск, проезд Ипподромный, д.5

Площадь: 63.05 / 30 / 14.2

2 комнатная квартира Смоленск
9 006 000 руб.
120 000 руб./м²

Смоленск, 25 Сентября улица, д.26

Площадь: 75.05 / 45.02 / 10.39

2 комнатная квартира Смоленск
7 688 400 руб.
120 000 руб./м²

Смоленск, 25 Сентября улица, д.26

Площадь: 64.07 / 34.57 / 14.12

2 комнатная квартира Смоленск
6 272 400 руб.
120 000 руб./м²

Смоленск, 25 Сентября улица, д.26

Площадь: 52.27 / 28.97 / 8.79

2 комнатная квартира Смоленск
5 946 000 руб.
120 000 руб./м²

Смоленск, 25 Сентября улица, д.26

Площадь: 49.55 / 24.75 / 9.02

2-ком. квартира, 54,9 м² 2-я Киевская улица
4 935 510 руб.
91 398 руб./м²

Смоленск, улица 2-я Киевская

Площадь: 54 / - / -

2-комнатная квартира с инд. отоплением ЖК Александровский!
5 500 000 руб.
78 348 руб./м²

Смоленск, Отрадная улица, д.1а

Площадь: 70.2 / 30 / 13

2-ком. квартира, 69,73 м² Ипподромный пр-д
5 404 075 руб.
78 320 руб./м²

Смоленск

Площадь: 69 / 31 / 14

2-ком. квартира, 69,95 м² Ипподромный проезд
5 618 900 руб.
81 433 руб./м²

Смоленск, проезд Ипподромный, д.34

Площадь: 69 / 33 / 14

ЖК Восточный Квартал
4 500 000 руб.
74 013 руб./м²

Смоленск, 1-я Восточная улица, д.5

Площадь: 60.8 / 29 / 13.6

2-ком. кв., 59 кв.м., шоссе Краснинское, 91
5 586 336 руб.
95 200 руб./м²

Смоленск, шоссе Краснинское, д.91

Площадь: 58.68 / 25.4 / 14.4

2-ком. квартира, 63,49 м² ЖК «Океан»
8 444 170 руб.
134 034 руб./м²

Смоленск, улица Николаева

Площадь: 63 / - / -

2-ком. квартира, 59,4 кв.м., шоссе Краснинское.
5 848 300 руб.
98 456 руб./м²

Смоленск, шоссе Краснинское

Площадь: 59.4 / - / -

2-ком. квартира, 54,68 кв.м., в строящемся доме (дом 1), ЖК "СреДа"
5 345 000 руб.
97 751 руб./м²

Смоленск, шоссе Краснинское

Площадь: 54.68 / - / -

2-ком., квартира, 57,55 кв.м., Краснинское шоссе.
5 618 312 руб.
97 625 руб./м²

Смоленск, шоссе Краснинское

Площадь: 57.55 / - / -

2-ком., квартира, 58,68 кв.м., Краснинское шоссе
5 106 333 руб.
88 040 руб./м²

Смоленск, шоссе Краснинское

Площадь: 58 / - / -

2-ком., квартира Ипподромная д.8, 2/10 кирпич.
5 758 169 руб.
95 413 руб./м²

Смоленск, проезд Ипподромный

Площадь: 60.35 / 32.11 / 12.2

Ипотека на лучших условия! Подберем программу от 16 банков!
  • Подберём оптимальную ипотечную программу с минимальными документами и сниженной ставкой
  • Предложим выгодные условия с партнёрскими банками и ускорим одобрение

🍪 Мы используем файлы cookie для улучшения работы сайта и аналитики.

Продолжая использовать сайт, вы соглашаетесь на их обработку. Политика конфиденциальности.